In vendita un appartamento arredato con una camera da letto, con una superficie abitabile totale di 60 mq, e un garage doppio interrato di 42 mq. L'immobile si trova nel quartiere Gotse Delchev della capitale Sofia, accanto al Palazzo Triaditsa.
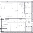
L'appartamento presenta una distribuzione degli spazi molto funzionale e comoda. È composto da un ingresso-corridoio, un soggiorno-sala da pranzo con angolo cottura, una camera da letto, un ripostiglio, un bagno e una terrazza. L'immobile offre un'esposizione a sud-est.
L'appartamento fa parte di un complesso recintato con videosorveglianza, controllo accessi e sicurezza.
L'edificio gode di un'ottima posizione, nelle immediate vicinanze di asili, scuole e del Parco Sud. È una zona tranquilla, silenziosa e sicura in cui vivere.
L'appartamento è in buone condizioni e viene venduto completamente arredato.
