La casa si trova in un tranquillo villaggio a soli 30 km dalla città di Plovdiv e a 5 km dalla città di Parvomay.
La casa ha una superficie abitabile totale di 230 mq. È costruita su un terreno di 980 mq. La proprietà comprende anche un garage e altri edifici. L'edificio residenziale è in buone condizioni. Il tetto è stato riparato. Gli infissi delle finestre sono stati sostituiti. Sono stati realizzati un bagno e una toilette interni.
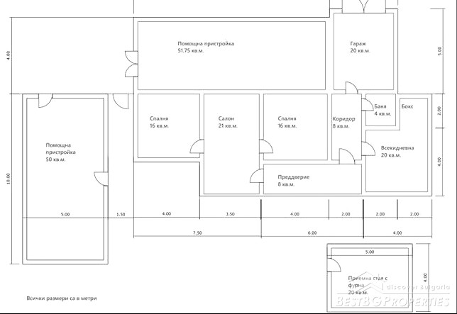
Distribuzione:
Piano terra: soggiorno, angolo cottura, bagno con WC, ampio ripostiglio con collegamento interno al garage e alla cantina.
Primo piano: due camere da letto e un soggiorno.
L'accesso ai piani avviene tramite una scala interna.
La proprietà offre tutti i comfort per un soggiorno confortevole e vivibile tutto l'anno. Si trova vicino al centro del villaggio. Una bella strada asfaltata conduce alla proprietà, rendendola accessibile anche in inverno. Nel centro del paese troverete tutti i servizi necessari alla vita quotidiana: municipio, centro comunitario, bar, ristorante, negozio di alimentari e altro ancora.
