Vi presentiamo questa ampia casa bifamiliare, esposta a sud, con 5 camere da letto, situata nella città termale di Bankya.
La proprietà si trova in un quartiere tranquillo e silenzioso, a soli 5 minuti di auto dalla tangenziale di Sofia, a 5 minuti a piedi dal negozio Fantastico, Speedy, Econt, negozi, bar e ristoranti, e a 20 minuti di auto da TSUM e Vitosha Blvd., nel centro di Sofia.
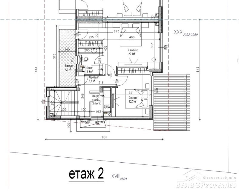
La casa dispone di due posti auto e di un piccolo giardino privato. La superficie abitabile totale è di 207 mq distribuiti su tre piani. La distribuzione interna è la seguente:
Al primo piano si trovano un soggiorno con cucina e sala da pranzo di 45,4 mq, una scala, un ingresso, un bagno e un piccolo ripostiglio.
Al secondo piano si trovano un'ampia camera da letto principale di 18 mq, una cabina armadio di 4 mq, un bagno di 4 mq, la camera da letto 2 (utilizzabile come ufficio) di 12,3 mq, un bagno di servizio di 3,4 mq e una terrazza di 7,2 mq.
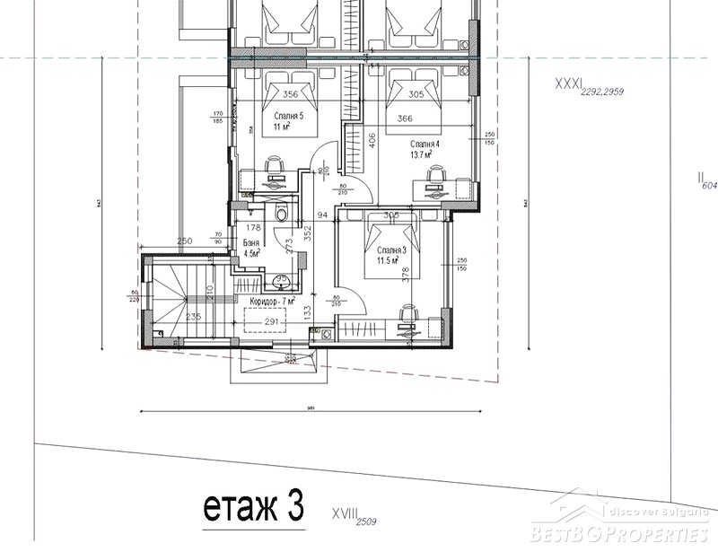
Al terzo piano si trovano tre camere da letto e un bagno. Camera da letto 3 di 11,5 mq, camera da letto 4 di 13,7 mq e camera da letto 5 di 10,7 mq. È presente anche un bagno di 4,5 mq.
La casa è esposta a sud, est e ovest. Sono necessarie le finiture finali. Il riscaldamento a pavimento è incluso nel prezzo. La proprietà è dotata di acqua e fognature centralizzate. La casa è completamente separata dalla vicina gemella, con ingresso indipendente e due posti auto.
